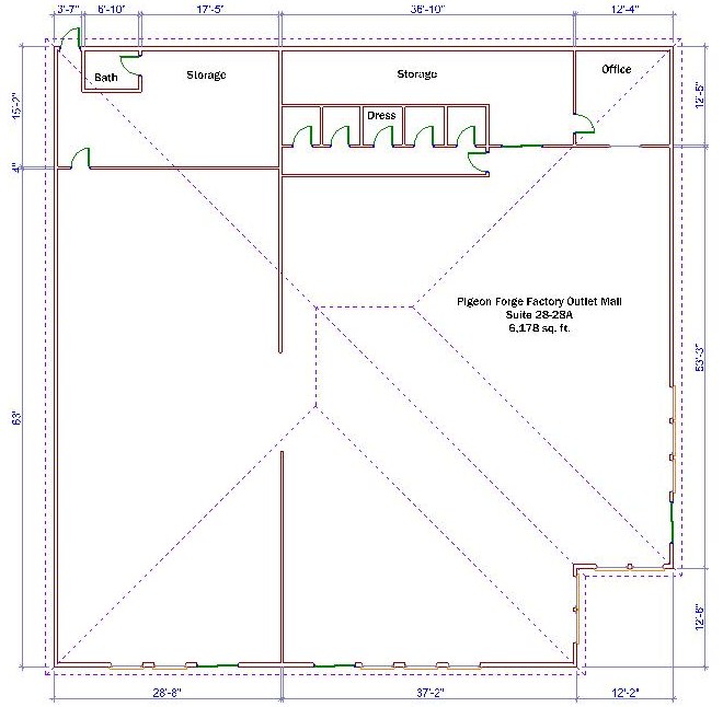
MALL MAP

Architectural Measurement Layouts

 

back to leasing